Slide 1 of 10

Grenada House of Parliament

Managing complicated geometries on a prestigious project at the heart of the Spice Island

Location

Mt. Weldale, St. George’s, Grenada

Beston's Role

Civil and Structural Design, Inspections

Beston's Team

Mark Francois, Kevin Granger, Julien Dalrymple, Stephen Alexander, Kirt David

Collaborators

Caribbean Office of Co-operative Architecture (COCOA) / Quinn Design & Construction Limited

In 2004, Hurricane Ivan devastated the Caribbean island of Grenada, fondly named the Spice Island due to its major export crops – nutmeg and mace. Among the buildings destroyed was the seat of local government, the House of Parliament.

After a lengthy process of recovery, in 2009 the Grenadian government announced an international competition for the design and construction of a new parliament building. This was laid out as a major project on the Grenadian landscape; very prestigious and important. It would be symbolic, too, as it would stand as a physical manifestation of the country’s ability to rebuild stronger after adversity.

Beston went in on the competition with a Grenadian architecture firm who was eventually named the winner in 2012. Among other things, the winning entry was lauded for its fusion of contemporary design with heritage construction and design features. Working within the constraints of the project’s tight budget, Beston came up with unconventional and innovative solutions, like using multiple systems, to ensure that the structure would be robust and that it would meet all seismic and wind requirements.

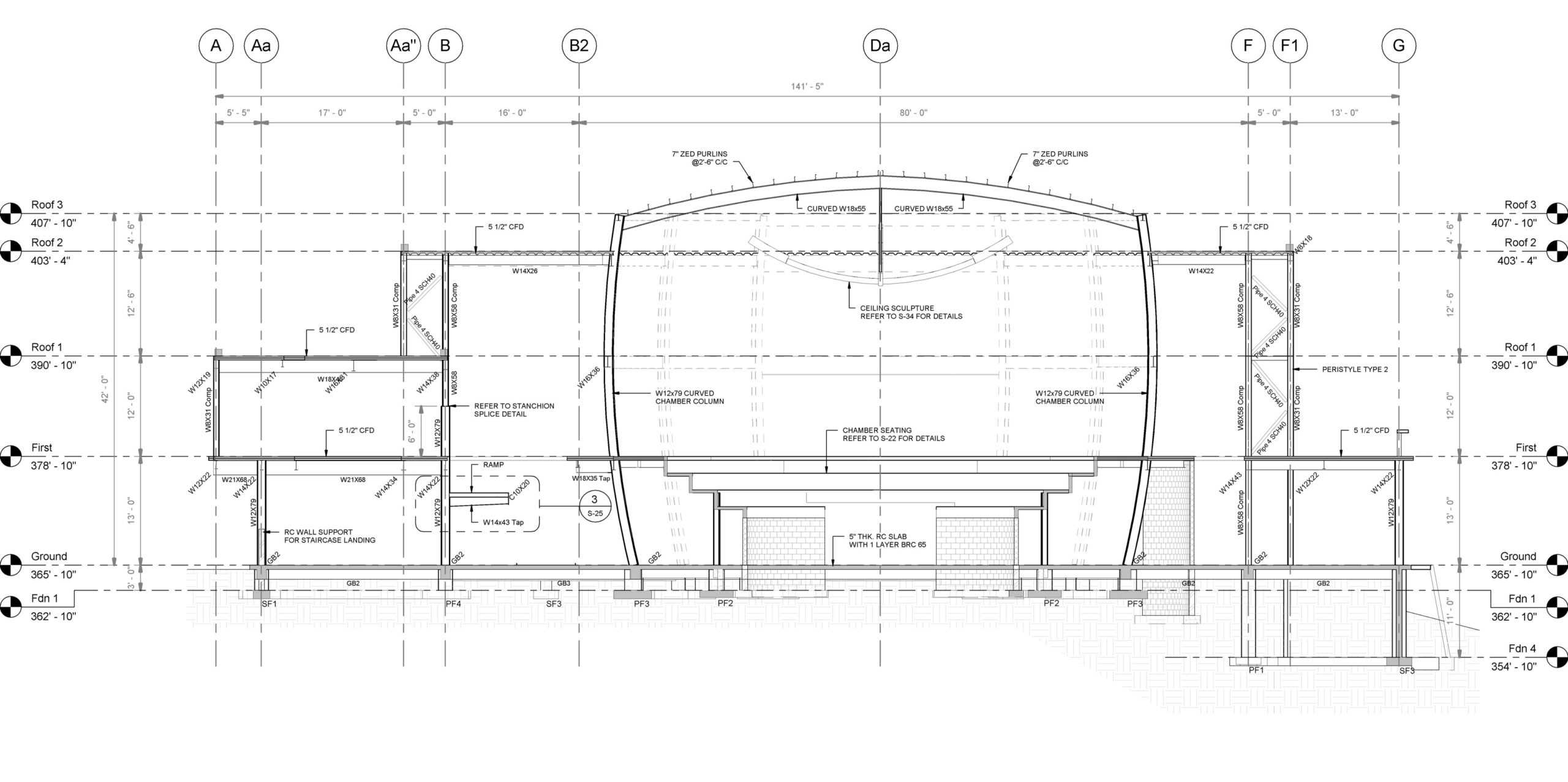
The building also proved quite challenging to accurately set out in drawings – particularly the columns and complicated curves of the parliamentary chamber, which was shaped like a nutmeg. We took a great deal of time and care in getting this aspect right so that, once constructed and clad, the end result would be a lovely yet deceptively simple and smooth surface.

This was one of the first structural projects on which Beston used the modelling software, Revit, which allowed us to work in a three-dimensional space to manage the difficult geometries of the design. The construction of the project also proved challenging – working remotely meant that we had to carefully coordinate with people on the ground, meticulously document all edits, and regularly fly in to ensure that high standards were being met at each step of the way.